Welcome to 38 Park Avenue, the world-class masterpiece designed to perfection that brings you an exciting New York-inspired lifestyle. Situated in the heart of Cebu IT Park, this 38-storey building is the highest in the area and boasts an ultra-exclusive VIP unit with meticulously designed panoramic views of Cebu.

The masterplan for 38 Park Avenue covers 1.18 hectares and features Phase 1, which includes 38 Park Avenue and The Plaza at Park Avenue, and Phase 2, which includes a future office building. The tower has two main lobbies (East and West), with two elevator cores of elevators each, and three levels of basement parking.

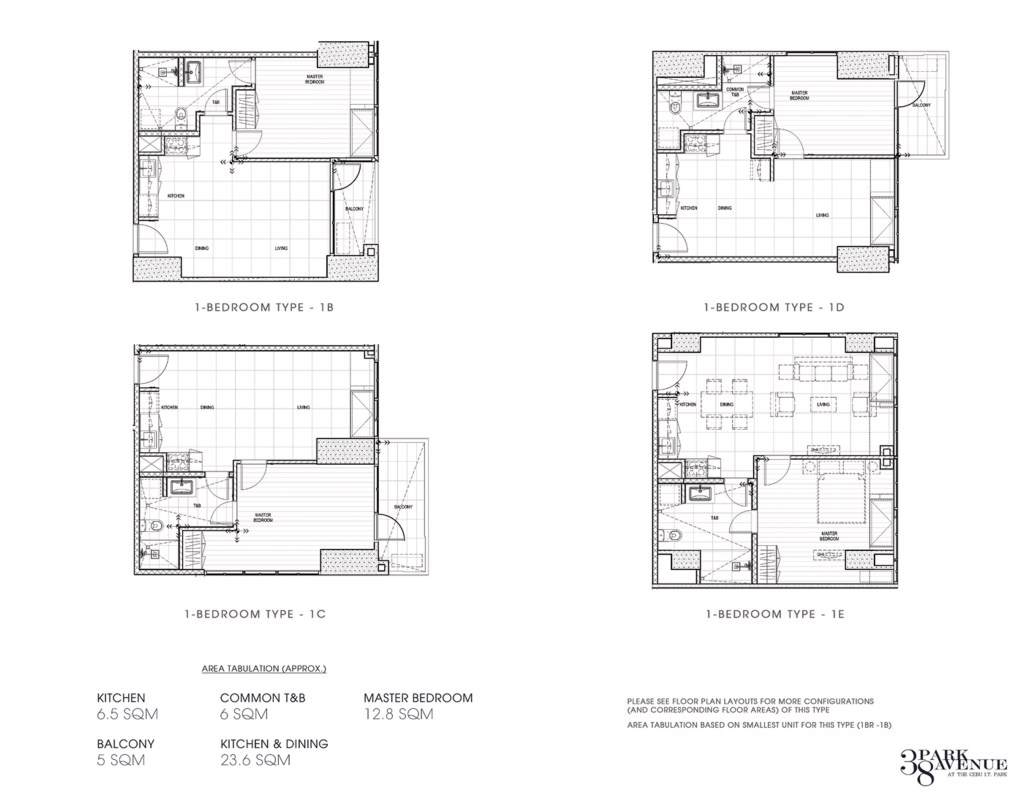
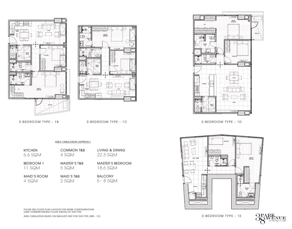
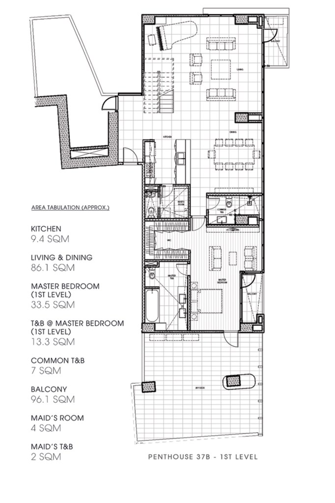
The building is designed with first-class living in every space, ensuring that every unit type and size enjoys the same experience and lifestyle. The building features 440 studios, 211 one-bedroom units, 75 two-bedroom units, 11 three-bedroom units, and 8 penthouses. Each unit is designed to offer a panoramic view of Cebu and has a balcony on select units.

38 Park Avenue features three levels of amenity at the 26th to the 28th floor, including a sky club amenity deck, a swimming pool, a fitness gym, lounge areas, and a multi-function hall. The kids’ zone, high-ceiling grand lobby, and garden atrium offer a relaxing and serene ambiance.

The building also features a materials recovery facility, 100% backup power, fire detection and suppression systems, and domestic water tanks. With 521 parking units, retail spaces on the ground, and a 24-hour security system with CCTV, your safety and convenience are guaranteed.
Experience first-class living at 38 Park Avenue, the epitome of luxury and elegance in Cebu IT Park. Contact us on WhatsApp or Messenger today for more information and to schedule a tour of this world-class masterpiece.









Leave a comment